Ref # : GE2369
For Sale € 295,000.00
2 Bedroom Penthouses
Fontana, GOZOOverview
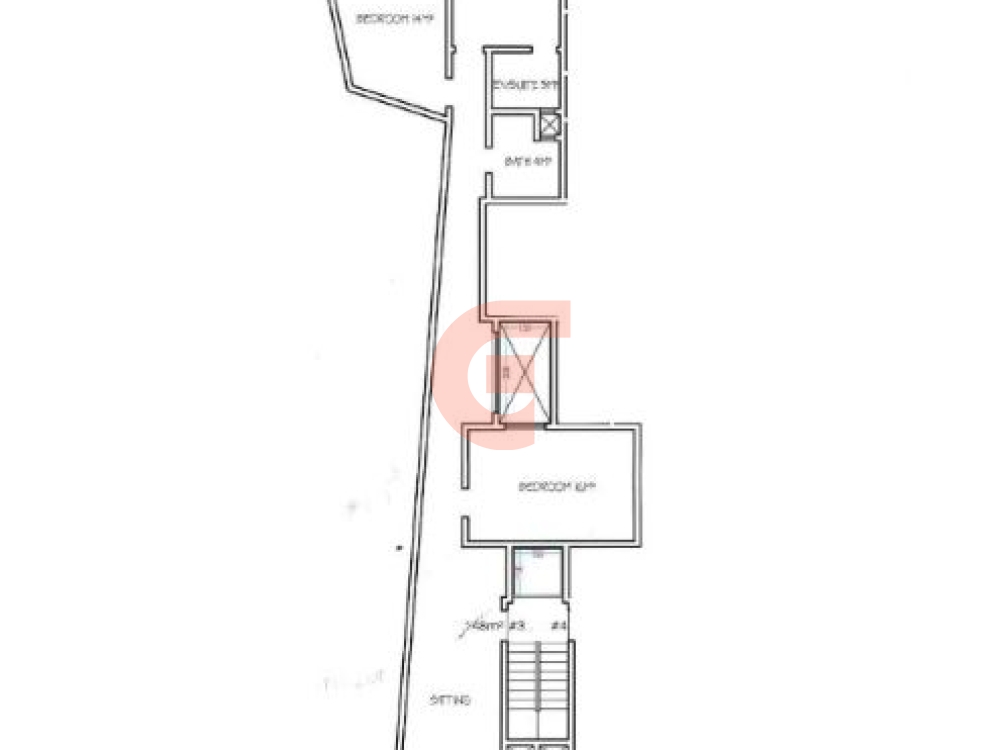
2-bedroom Penthouses set on the fourth floor level in a new pre-construction block to be sold on plan at pre-construction prices in a shell-form state. The typical layout comprises of an entrance into a combined kitchen/dining/living, 2 bedrooms (main with en-suite and back balcony), the main bathroom, a box room, and a front terrace.
| Price List | ||||||
| Type | Level | Bed | Bath | Sqm | Price | Common Parts |
| Penthouse No.7 | Fourth-Floor | 2 | 2+Box Room | 120m2 | €295,000 | €10,000 |
Pdf plans below ↓
Features
Base Information
Parking Information
General Amenities
Exterior Amenities
Giovanni Real Estate
One of the successful real estate agency in the Maltese Islands offering property for sale and turnkey solutions in Malta and Gozo. A vast range of,Apartments, Penthouses Maisonettes, Terraced Houses, Traditional Farmhouses, Houses of character ,Bungalows, Villas, Commercial outlets, property investments and properties for sale are available in Malta and Gozo.
Check out our website, the best place to start your real estate search. You can also contact our real estate agent for a customized selection of the property types you are interested in, including professional advice and opinion.




