Ref # : GE2511
For Sale € 245,000.00
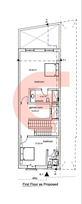
Plot - With Permits for Terraced House
Nadur, GOZOOverview
A plot of Land set in a very quiet alley on the outskirts of the village measuring approx 100sqm will be sold with permits in Hand to build a 3 bedroom House with back yard.
Pdf plans below ↓
Giovanni Real Estate
One of the successful real estate agency in the Maltese Islands offering property for sale and turnkey solutions in Malta and Gozo. A vast range of,Apartments, Penthouses Maisonettes, Terraced Houses, Traditional Farmhouses, Houses of character ,Bungalows, Villas, Commercial outlets, property investments and properties for sale are available in Malta and Gozo.
Check out our website, the best place to start your real estate search. You can also contact our real estate agent for a customized selection of the property types you are interested in, including professional advice and opinion.




