Ref # : GE2351
For Sale € 164,000.00
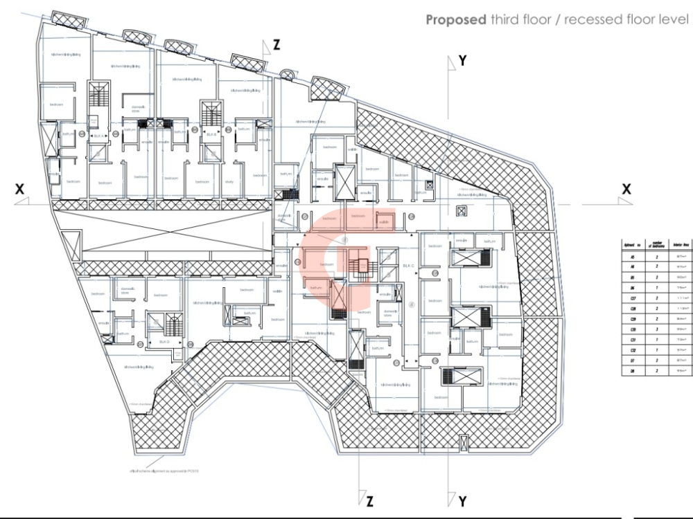
Exclusive Project
Victoria, GOZOOverview
Set in the beautiful outskirts of the city, enjoying peace and tranquility yet close to all amenities, offering a selection of residential units, 1, 2, and 3 bedroom Apartments with good-sized entertaining terraces and private pool, enjoying unobstructed views. Sold in a semi-finished state with highly finished common parts. Freehold.
Optional lock-up garages.
Presentation PDF below ↓
Giovanni Real Estate
One of the successful real estate agency in the Maltese Islands offering property for sale and turnkey solutions in Malta and Gozo. A vast range of,Apartments, Penthouses Maisonettes, Terraced Houses, Traditional Farmhouses, Houses of character ,Bungalows, Villas, Commercial outlets, property investments and properties for sale are available in Malta and Gozo.
Check out our website, the best place to start your real estate search. You can also contact our real estate agent for a customized selection of the property types you are interested in, including professional advice and opinion.














